Кран мостовой КЭОД, электрический опорный двухбалочный
Обратно
ЛИЗИНГ
- Описание
- Характеристики
- Документация
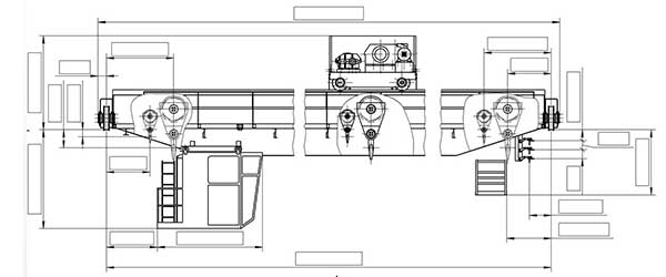
Кран мостовой электрический опорный двухбалочный, г/п 10 тонн,
режим работы 1К по ГОСТ 25546-82. ТУ 3151-053-00211292-2015
режим работы 1К по ГОСТ 25546-82. ТУ 3151-053-00211292-2015
Краны предназначены для подъема и перемещения грузов при производстве ремонтных, монтажных, строительных и других работ в закрытых помещениях при температуре окружающей среды от -40° до +40°C. По желанию заказчика возможно установить на привод передвижения моста двигатели со встроенными электромагнитными тормозами, преобразователь частоты, который обеспечит плавность пусковых характеристик данного крана, радиоуправление краном. Исполнение крана - общепромышленное. Имеется сертификат Соответствия.
Напряжение - 380 Вольт, частота - 50 гц, токоподвод - кабельный, Суммарная мощность крана - 4,61 кВт.

Кран мостовой электрический опорный двухбалочный, г/п 10 тонн,
режим работы 3К по ГОСТ 25546-82. ТУ 3151-053-00211292-2015
режим работы 3К по ГОСТ 25546-82. ТУ 3151-053-00211292-2015
Краны предназначены для подъема и перемещения грузов при производстве ремонтных, монтажных, строительных и других работ в закрытых помещениях при температуре окружающей среды от -40° до +40°C. Преобразователи частоты, применяемые на кране, обеспечивает плавный пуск, остановку и регулирование скорости передвижения моста и грузовой тележки. Привода передвижения моста крана и грузовой тележки оснащены двигателями со встроенным электромагнитным тормозом Для подъема груза используется электрическая таль.
По желанию заказчика возможно изготовление радиоуправление краном.
Исполнение крана - общепромышленное. Имеется сертификат Соответствия.
Напряжение - 380 Вольт, частота - 50 гц, токоподвод - кабельный, Суммарная мощность крана - 16 кВт.

Кран мостовой электрический опорный двухбалочный, ВБИ г/п 10 тонн,
ТУ 3152-049-00211292-2011
ТУ 3152-049-00211292-2011
Краны взрывобезопасного исполнения предназначены для производства ремонтных работ в закрытых помещениях во взрывоопасных зонах класса В-1а; В-1б; В-1г по ПУЭ, в которых возможно образование взрывоопасных смесей категорий IIА,IIB и температурных групп Т1, Т2, Т3, Т4 по ГОСТ 51330.0.Напряжение питания - 380 Вольт, 50 Гц. Токоподвод - кабельный, установленная мощность - 11,1 кВт. Скорости механизмов: Подъема груза - 0,066 м/сек (4 м/мин)
Передвижения крана: 0,1-0,25 м/сек Передвижения тележки: 0,2 м/сек. Преобразователи частоты, применяемые на кране, обеспечивают плавный пуск, остановку и регулирование скорости передвижения моста и грузовой тележки.

Кран мостовой электрический опорный двухбалочный, г/п 20 тонн,
ТУ 3151-053-00211292-2015
ТУ 3151-053-00211292-2015

| Кран мостовой электрический двухбалочный опорный г/п 10,0тн 1К | |
|---|---|
| Высота подъёма, м | По заказу |
| Габаритные размеры | 7,5-16,5/4,06/1,4 |
| Масса, тонн | 5,5-8,3 |
| Климатическое исполнение, категория размещения по ГОСТ15150 | У2; У3; УХЛ4; 1К |
| Температура окружающей среды, °С | ( -20+40); ( -40+40) |
| Исполнение | Общепромышленное |
| Класс пожароопасной зоны | --- |
| Класс взрывоопасной зоны | --- |
| Категория взрывоопасной смеси | --- |
| Кран мостовой электрический двухбалочный опорный г/п 10,0тн 3К | |
|---|---|
| Высота подъёма, м | По заказу |
| Габаритные размеры | 7,5-16,5/4,14/1,47 |
| Масса, тонн | 5,3-8,0 |
| Климатическое исполнение, категория размещения по ГОСТ15150 | У2; У3; УХЛ4; 3К |
| Температура окружающей среды, °С | ( -20+40) |
| Исполнение | Общепромышленное |
| Класс пожароопасной зоны | --- |
| Класс взрывоопасной зоны | --- |
| Категория взрывоопасной смеси | --- |
| Кран мостовой электрический двухбалочный опорный г/п 10,0тн ВБИ | |
|---|---|
| Высота подъёма, м | По заказу |
| Габаритные размеры | 7,5-17,0/3,5/1,54 |
| Масса, тонн | 5,6-8,4 |
| Климатическое исполнение, категория размещения по ГОСТ15150 | У2; У3; УХЛ4; 2К; 3К Т1; Т2; Т3; Т4 |
| Температура окружающей среды, °С | ( -20+40) |
| Исполнение | Взрывобезопасное |
| Класс пожароопасной зоны | --- |
| Класс взрывоопасной зоны | В-1а, В-1б, В-1г |
| Категория взрывоопасной смеси | IIA, IIB |
| Кран мостовой электрический двухбалочный опорный г/п 10,0тн (коробчатый) | |
|---|---|
| Высота подъёма, м | По заказу |
| Габаритные размеры | 6,0-22,5/4,8/1,3-2,0 |
| Масса, тонн | 7,7-18,4 |
| Климатическое исполнение, категория размещения по ГОСТ15150 | У2; У3; УХЛ4; А3; А5 |
| Температура окружающей среды, °С | ( -20+40); ( -40+40) |
| Исполнение | Общепромышленное Пожаробезопасное |
| Класс пожароопасной зоны | П-I; П-II; П-IIа; П-III |
| Класс взрывоопасной зоны | --- |
| Категория взрывоопасной смеси | --- |
| Кран мостовой электрический двухбалочный опорный г/п 10,0тн (управление из кабины) | |
|---|---|
| Высота подъёма, м | По заказу |
| Габаритные размеры | 13,5-22,5/5,46/2,0 |
| Масса, тонн | 19,5-20,1 |
| Климатическое исполнение, категория размещения по ГОСТ15150 | У2; У3; УХЛ4; А3; А5 |
| Температура окружающей среды, °С | ( -20+40); ( -40+40) |
| Исполнение | Общепромышленное Пожаробезопасное |
| Класс пожароопасной зоны | П-I; П-II; П-IIа; П-III |
| Класс взрывоопасной зоны | --- |
| Категория взрывоопасной смеси | --- |
| Кран мостовой электрический двухбалочный опорный г/п 20,0тн (коробчатый) | |
|---|---|
| Высота подъёма, м | По заказу |
| Габаритные размеры | 14,5-22,5/4,8-5,2/2,0-2,26 |
| Масса, тонн | 14,5-19,9 |
| Климатическое исполнение, категория размещения по ГОСТ15150 | У2; У3; УХЛ4; А3; А5 |
| Температура окружающей среды, °С | ( -20+40); ( -40+40) |
| Исполнение | Общепромышленное Пожаробезопасное |
| Класс пожароопасной зоны | П-I; П-II; П-IIа; П-III |
| Класс взрывоопасной зоны | --- |
| Категория взрывоопасной смеси | --- |
Опросный лист и характеристики на:
Кран мостовой электрический опорный двухбалочный г/п 20 тонн
Кран электрический опорный двухбалочный г/п 10 тонн управление из кабины
Кран электрический опорный двухбалочный г/п 10 тонн управление с пола
Кран мостовой электрический двухбалочный опорный гп 5,0-28 коробчатого сечения

29-09-2021