Кран мостовой КЭП, электрический однобалочный подвесной
Обратно
- Описание
- Характеристики
- Документация
ТУ 3157-045-00211292-2010
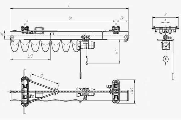
Краны предназначены для подъема и перемещения груза в помещениях или на открытых площадках под навесом. Режим работы 3К ГОСТ 25546-82. В отличие от опорных кранов, подвесные краны, за счет наличия консолей, при той же длине пролета, позволяют обслуживать большую площадь. По желанию заказчика, возможно установить на привод передвижения моста двигатели со встроенными электромагнитными тормозами, преобразователь частоты, который обеспечит плавность пусковых характеристик данного крана, радиоуправление краном. В стандартном исполнении кран оснащен тельфером с крюком, в зависимости от характера работ может также быть укомплектован дополнительным навесным оборудованием - грейфер, магнит.
Род электрического тока - переменный. Напряжение - 380 Вольт, частота - 50 гц, токоподвод - кабельный
Суммарная мощность двигателей (в зависимости от типа электрической тали и высоты подъема):
г/п 1,0 т - 2,5 - 0,5 кВт; г/п 2,0 т - 4,1 - 0,5 кВт;
г/п 3,2 т - 6,5 - 0,5 кВт; г/п 5,0 т - 9,6 - 0,5 кВт.
Скорость передвижения крана 0,47 м/сек (28 м/мин).

ТУ 3157-045-00211292-2010
Краны предназначены для подъема и перемещения груза в помещениях или на открытых площадках под навесом при температуре окружающей среды от -40° до +40°C. Режим работы 3К ГОСТ 25546-82. Исполнение крана - общепромышленное. Род электрического тока - переменный. Напряжение - 380 В. 50 Гц.
Суммарная мощность крана - 17,0 - 0,5 кВт - в зависимости от типа электрической тали. Токопровод - кабельный. Преобразователь частоты, применяемый на кране, обеспечивает плавный пуск, остановку и регулирование скорости передвижения моста. Для подъема груза используется электрическая таль. По желанию заказчика возможно установить на привод передвижения моста двигатели со встроенными электромагнитными тормозами, а также радиоуправление краном. В стандартном исполнении кран оснащен тельфером с крюком, в зависимости от характера работ может также быть укомплектован дополнительным навесным оборудованием - грейфер, магнит.

ТУ 3157-045-00211292-2010
Краны предназначены для подъема и перемещения груза в помещениях или на открытых площадках под навесом при температуре окружающей среды от -40° до +40°C. Режим работы 3К ГОСТ 25546-82. Исполнение крана - общепромышленное. Род электрического тока - переменный. Напряжение - 380 В. 50 Гц.
Суммарная мощность крана - 17,0 - 0,5 кВт - в зависимости от типа электрической тали. Токопровод - кабельный. Преобразователь частоты, применяемый на кране, обеспечивает плавный пуск, остановку и регулирование скорости передвижения моста. Для подъема груза используется электрическая таль. По желанию заказчика возможно установить на привод передвижения моста двигатели со встроенными электромагнитными тормозами, а также радиоуправление краном. В стандартном исполнении кран оснащен тельфером с крюком, в зависимости от характера работ может также быть укомплектован дополнительным навесным оборудованием - грейфер, магнит.

ТУ 3157-045-00211292-2010
Краны мостовые подвесные однобалочные электрические во взрывозащищенном исполнении (в дальнейшем краны) с электрической взрывозащищенной талью и электрическим механизмом передвижения крана и тали, грузоподъемностью 1,0 и 2,0 тонны, предназначены для работы в помещении, исключающем воздействие атмосферных осадков и ветровой нагрузки, на трехфазном токе напряжением 380 В, частотой 50 Гц, предназначенные для работы во взрывоопасных зонах классов В-Iа, В-Iб, В-Iг по классификации ПУЭ, в которых возможно образование взрывоопасных смесей паров и газов с воздухом - категорий IIА и IIВ и температурных групп Т1, Т2, Т3, Т4 по ГОСТ 51330.5.
Кран должен использоваться для работ, не связанных с технологическим процессом. Преобразователь частоты, применяемый на кране, обеспечивает плавный пуск, остановку и регулирование скорости передвижения моста. Токоподвод -кабельный.
Установленная мощность: 3,25 кВт. - г/п 1,0 т; 4,75 кВт. - г/п 2,0 т.
Скорости механизмов:
Подъема груза -0,13 м/сек(8 м/мин);
Передвижения крана -0,18 м/сек(10,8 м/мин);
Передвижения тали-0,33 м/сек(20 м/мин).

ТУ 3157-045-00211292-2010
Краны мостовые подвесные однобалочные электрические во взрывозащищенном исполнении (в дальнейшем ? краны) с электрической взрывозащищенной талью и электрическим механизмом передвижения крана и тали, грузоподъемностью 3,2; 5,0 тонн, предназначены для работы в помещении, исключающем воздействие атмосферных осадков и ветровой нагрузки, на трехфазном токе напряжением 380 В, частотой 50 Гц предназначенные для работы во взрывоопасных зонах классов В-Iа, В-Iб, В-Iг по классификации ПУЭ, в которых возможно образование взрывоопасных смесей паров и газов с воздухом- категорий IIА и IIВ и температурных групп Т1, Т2, Т3, Т4 по ГОСТ 51330.5.
Преобразователь частоты, применяемый на кране, обеспечивает плавный пуск, остановку и регулирование скорости передвижения моста. Токоподвод -кабельный.
Установленная мощность-5,75 кВт. - г/п 3,2 т;9,25 кВт. - г/п 5,0 т
Скорости механизмов:
Подъема груза -0,13 м/сек(8 м/мин)
Передвижения крана -0,18 м/сек(10,8 м/мин)
Передвижения тали-0,33 м/сек(20 м/мин)

ТУ 3157-045-00211292-2010
Краны мостовые подвесные однобалочные электрические во взрывозащищенном исполнении (в дальнейшем краны) с электрической взрывозащищенной талью и электрическим механизмом передвижения крана и тали, грузоподъемностью 10,0 тонн, предназначены для работы в помещении, исключающем воздействие атмосферных осадков и ветровой нагрузки, на трехфазном токе напряжением 380 В, частотой 50 Гц предназначенные для работы во взрывоопасных зонах классов В-Iа, В-Iб, В-Iг по классификации ПУЭ, в которых возможно образование взрывоопасных смесей паров и газов с воздухом- категорий IIА и IIВ и температурных групп Т1, Т2, Т3, Т4 по ГОСТ 51330.5.
Преобразователь частоты, применяемый на кране, обеспечивает плавный пуск, остановку и регулирование скорости передвижения моста. Токоподвод -кабельный.
Установленная мощность-12,6 кВт.
Скорости механизмов:
Подъема груза -0,06 м/сек(4 м/мин)
Передвижения крана -0,25 м/сек(15 м/мин)
Передвижения тали-0,33 м/сек(20 м/мин)
Краны должны использоваться для работ, не связанных с технологическим процессом.

| Кран мостовой электрический однобалочный подвесной г/п 1,0тн | |
|---|---|
| Высота подъёма, м | По заказу |
| Габаритные размеры | 3,6-4,2/1,26-1,71/0,38-0,44 |
| Масса, тонн | 0,63-1,51 |
| Климатическое исполнение, категория размещения по ГОСТ15150 | У1; У2; У3; УХЛ4; А3 (3К) |
| Температура окружающей среды, °С | ( -20+40); ( -40+40) |
| Исполнение | Общепромышленное Пожаробезопасное |
| Класс пожароопасной зоны | П-I; П-II; П-IIа; П-III |
| Маркировка взрывозащиты взрывозащищенного исполнения | Ex II Gb c IIB T4 Х |
| Кран мостовой электрический однобалочный подвесной г/п 2,0тн | |
|---|---|
| Высота подъёма, м | По заказу |
| Габаритные размеры | 3,6-18,0/1,26-1,71/0,43-0,59 |
| Масса, тонн | 0,74-1,86 |
| Климатическое исполнение, категория размещения по ГОСТ15150 | У1; У2; У3; УХЛ4; А3 (3К) |
| Температура окружающей среды, °С | ( -20+40); ( -40+40) |
| Исполнение | Общепромышленное Пожаробезопасное |
| Класс пожароопасной зоны | П-I; П-II; П-IIа; П-III |
| Маркировка взрывозащиты взрывозащищенного исполнения | Ex II Gb c IIB T4 Х |
| Кран мостовой электрический однобалочный подвесной г/п 3,2тн | |
|---|---|
| Высота подъёма, м | По заказу |
| Габаритные размеры | 3,6-18,0/1,26-1,71/0,48-0,72 |
| Масса, тонн | 1,02-2,48 |
| Климатическое исполнение, категория размещения по ГОСТ15150 | У1; У2; У3; УХЛ4; А3 (3К) |
| Температура окружающей среды, °С | ( -20+40); ( -40+40) |
| Исполнение | Общепромышленное Пожаробезопасное |
| Класс пожароопасной зоны | П-I; П-II; П-IIа; П-III |
| Маркировка взрывозащиты взрывозащищенного исполнения | Ex II Gb c IIB T4 Х |
| Кран мостовой электрический однобалочный подвесной г/п 5,0тн | |
|---|---|
| Высота подъёма, м | По заказу |
| Габаритные размеры | 3,6-18,0/1,86-2,09/0,48-0,72 |
| Масса, тонн | 1,75-3,28 |
| Климатическое исполнение, категория размещения по ГОСТ15150 | У1; У2; У3; УХЛ4; А3 (3К) |
| Температура окружающей среды, °С | ( -20+40); ( -40+40) |
| Исполнение | Общепромышленное Пожаробезопасное |
| Класс пожароопасной зоны | П-I; П-II; П-IIа; П-III |
| Маркировка взрывозащиты взрывозащищенного исполнения | Ex II Gb c IIB T4 Х |
| Кран мостовой электрический однобалочный подвесной г/п 1,0тн ВБИ, 2,0тн ВБИ | |
|---|---|
| Высота подъёма, м | По заказу |
| Габаритные размеры | 3,6-18,0/1,47-1,71/0,38-0,44 |
| Масса, тонн | 0,7-1,8 |
| Климатическое исполнение, категория размещения по ГОСТ15150 | У2; У3; УХЛ4; А2 (2К); А3 (3К) |
| Температура окружающей среды, °С | ( -20+40) |
| Исполнение | Взрывобезопасное |
| Класс пожароопасной зоны | --- |
| Маркировка взрывозащиты взрывозащищенного исполнения | Ex II Gb c IIB T4 Х |
| Кран мостовой электрический однобалочный подвесной г/п 3,2тн ВБИ, г/п 5,0тн ВБИ | |
|---|---|
| Высота подъёма, м | По заказу |
| Габаритные размеры | 3,6-18,0/1,86/0,44-0,68 |
| Масса, тонн | 0,82-2,35 |
| Климатическое исполнение, категория размещения по ГОСТ15150 | У2; У3; УХЛ4; А2 (2К); А3 (3К) |
| Температура окружающей среды, °С | ( -20+40) |
| Исполнение | Взрывобезопасное |
| Класс пожароопасной зоны | --- |
| Маркировка взрывозащиты взрывозащищенного исполнения | Ex II Gb c IIB T4 Х |
| Кран мостовой электрический однобалочный подвесной г/п 10,0тн ВБИ | |
|---|---|
| Высота подъёма, м | По заказу |
| Габаритные размеры | 22,5/4,8/1,33 |
| Масса, тонн | 11,9 |
| Климатическое исполнение, категория размещения по ГОСТ15150 | У2; У3; УХЛ4; А2 (2К); А3 (3К) |
| Температура окружающей среды, °С | ( -20+40) |
| Исполнение | Взрывобезопасное |
| Класс пожароопасной зоны | --- |
| Маркировка взрывозащиты взрывозащищенного исполнения | Ex II Gb c IIB T4 Х |
| Кран мостовой электрический однобалочный подвесной г/п 10,0тн | |
|---|---|
| Высота подъёма, м | По заказу |
| Габаритные размеры | 4,2-12,0/2,9/0,97 |
| Масса, тонн | 4,8-5,7 |
| Климатическое исполнение, категория размещения по ГОСТ15150 | У1; У2; У3; УХЛ4; А3 (3К) |
| Температура окружающей среды, °С | ( -20+40); ( -40+40) |
| Исполнение | Общепромышленное Пожаробезопасное |
| Класс пожароопасной зоны | П-I; П-II; П-IIа; П-III |
| Маркировка взрывозащиты взрывозащищенного исполнения | Ex II Gb c IIB T4 Х |
| Кран мостовой электрический однобалочный подвесной г/п 12,5тн | |
|---|---|
| Высота подъёма, м | По заказу |
| Габаритные размеры | 10,2-12,0/2,9/0,96 |
| Масса, тонн | 5,7 |
| Климатическое исполнение, категория размещения по ГОСТ15150 | У1; У2; У3; УХЛ4; А3 (3К) |
| Температура окружающей среды, °С | ( -20+40); ( -40+40) |
| Исполнение | Общепромышленное Пожаробезопасное |
| Класс пожароопасной зоны | П-I; П-II; П-IIа; П-III |
| Маркировка взрывозащиты взрывозащищенного исполнения | Ex II Gb c IIB T4 Х |
* Категория размещения У1 может быть использована только в кранах общепромышленного и пожаробезопасного исполнения.
** В стандартном исполнении кран оснащен тельфером с крюком, в зависимости от характера работ может также быть укомплектован дополнительным навесным оборудованием - грейфер, магнит.
Опросный лист и характеристики на:
Кран мостовой подвесной однобалочный электрический г/п 1,0; 2,0; 3,2; 5,0 тонн
Кран мостовой подвесной однобалочный электрический г/п 10,0 тонн
Кран мостовой подвесной однобалочный электрический г/п 12,5 тонн
Опросный лист и характеристики на:
Кран мостовой подвесной однобалочный электрический ВБИ г/п 1,0; 2,0 тонны
Кран мостовой подвесной однобалочный электрический ВБИ г/п 3,2; 5,0 тонн
Кран мостовой подвесной однобалочный электрический ВБИ г/п 10 тонн
Краны электрические однобалочные ТР ТС 012

29-09-2021